Проект планировки центральной части микрорайона № 1А в северной части города Рубцовска

Проект планировки центральной части микрорайона № 1А
в северной части города Рубцовска

Постанавление о проведении публичных слушаний 1apost-slush12.2008.doc (24.5 КБ)
Постановление о подготовке проекта планировки post-proekt.1a.doc (125.5 КБ)
Постановление об утверждении проектов планировки и
межевания территории post-utv_1a.doc (24 КБ)
Пояснительная записка 1a_poisnitel.doc (320 КБ)
Заключение zakl.doc (30 КБ)

План-схема кабельных ЛЭП el.jpg (948.76 КБ)
План-схема телефонной сети tel.jpg (970.19 КБ)
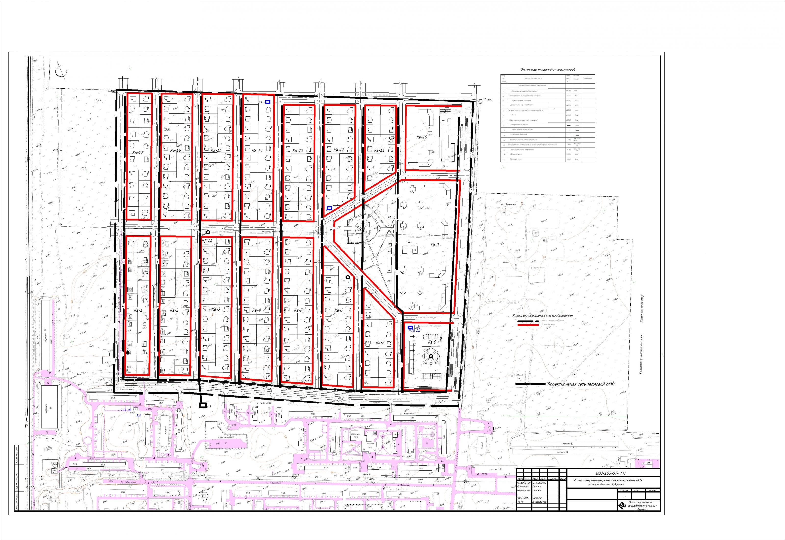
План-схема тепловых сетей teplovie-seti.jpg (950.2 КБ)
План-схема сетей водопровода,канализации vk.jpg (973 КБ)